
Электроприводы Belimo | Приводы Belimo | Сервоприводы Belimo
127106, Россия, г.Москва, Нововладыкинский пр., д.8, стр.4, офис 100.
Тел.: 8 (800) 201-64-80 Еmail: belimo@rusmark.ru
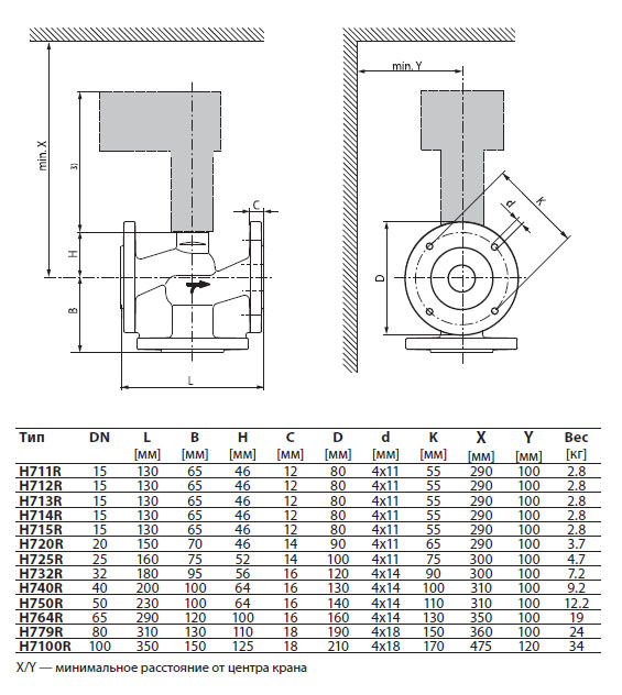
Клапан седельный 3-х ходовой Belimo H720R с фланцевым типом соединения. Устройство применяется в закрытых контурах горячей и холодной воды для регулирования потока в отопительных, вентиляционных и системах кондиционирования воздуха.
Пропускная способность – max 6,3 м3/час. Max t теплоносителя – +120°С.
| Среда | Вода (хол./гор.), MAX 50% содержания гликоля |
| t теплоносителя | (–10)+5 °С … +120°С |
| Разрешенное давление (PN) | Ps 600 кПа |
| Характеристика потока в регулирующем канале | Равно-процентная |
| Характеристика потока в байпасной линии | Линейная |
| Уровень утечки в регулирующем канале | Класс утечки III |
| Утечка в байпасной линии | MAX 1% от Kvs |
| Тип соединения | Фланцевый |
| Точка закрытия | Наверху |
| Положение установки | От вертикального до горизонтального (относительно штока) |
| Необходимость технического обслуживания | Отсутствует |
| Материал тела клапана | Чугун GG 25 |
| Материал конуса клапана | Нержавеющая сталь |
| Материал штока клапана | Нержавеющая сталь |
| Материал седла клапана | чугун GG 25 |
| Уплотнительный элемент | Резина EPDM |
Управление
Модель 3-х ходовых клапанов Belimo H720R приводится в работу электрическим приводом. Стандарт сигнал 0-10 В или импульсный по 3-х позиционной схеме управляют приводом, перемещая конус клапана (управляющее устройство) в открытое положение.
Ручной режим управления
Возможен ручной режим управления седельным клапаном Belimo H720R. Для приведения штока клапана в движение необходимо воспользоваться шестигранным ключом.
Характеристика потока
Конструкция клапана Belimo H720R сконструирована таким образом, что обеспечивает равно-процентную характеристику водного потока.
Особые указания по применению
Запросить цену и заказать кран Belimo H720R Вы можете, позвонив по телефону: 8 (499) 201-22-47
Скидки и оптовые цены на регулирующий шаровой кран Белимо H720R мы обсуждаем индивидуально.
На клапан Белимо H720R распространяется 5 лет гарантии с момента продажи, а также сертификат соответствия и паспорт изделия.

Скачать PDF (183 Кбайт)
Сертификат BELIMO (775 Кбайт)