
Электроприводы Belimo | Приводы Belimo | Сервоприводы Belimo
127106, Россия, г.Москва, Нововладыкинский пр., д.8, стр.4, офис 100.
Тел.: 8 (800) 201-64-80 Еmail: belimo@rusmark.ru
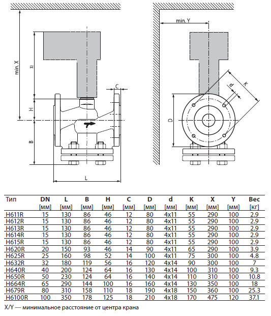
2-ходовый фланцевый седельный клапан PN 6.
2-ходовый фланцевый седельный клапан PN 6 H611R.
| Среда | Горячая и холодная вода (содержание гликоля макс 50%) |
| Температура среды | (–10)+5 °С … +120 °С |
| Разрешенное давление Ps | 600 кПа (PN6) |
| Характеристика потока | Регулирующий канал А-АВ: равнопроцентная |
| Уровень утечки | Регулирующий канал А-АВ , класс утечки III |
| Трубное присоединение | Фланцы |
| Шток | См. «Обзор типов» |
| Точка закрытия | Вверху Положение установки От вертикального до горизонтального (относительно штока) |
| Тех. обслуживание | Не требуется |
| Тело клапана | чугун GG 25 |
| Конус клапана | Нержавеющая сталь |
| Шток клапана | Нержавеющая сталь |
| Седло клапана | чугун GG 25 |
| Уплотнение штока | EPDM |
Принцип действия
Cедельный клапан Belimo H611R управляется с помощью электроприводов. Данные электроприводы управляются стандартным сигналом 0… 10 В= или по 3-позиционной схеме и передвигают конус H611R седельный клапан Белимо с — регулирующее устройство — в открытое положение согласно управляющему сигналу.
Характеристика потока
Равно-процентная характеристика потока обеспечивается конструкцией конуса клапан BELIMO H611R.
Ручное управление
Приведение в движение штока H611R клапан BELIMO ручным способом осуществляется с помощью шестигранного ключа через привод.
Регулирующий клапан Белимо H611R а также запросить его цену и стоимость вы можете позвонив по телефону: 8 (499) 201-22-47.
Скидки и оптовые цены на регулирующий шаровой кран Белимо H611R мы обсуждаем индивидуально.
На Кран Белимо H611R распространяется 5 лет гарантии с момента продажи, а также сертификат соответствия и паспорт изделия.

Скачать PDF (187 Кбайт)
Сертификат BELIMO (775 Кбайт)