
Электроприводы Belimo | Приводы Belimo | Сервоприводы Belimo
127106, Россия, г.Москва, Нововладыкинский пр., д.8, стр.4, офис 100.
Тел.: 8 (800) 201-64-80 Еmail: belimo@rusmark.ru
Шаровой кран Belimo R3020-2P5-P63-B2 регулирует водный поток и переключает между собой обогревательный и охлаждающий контуры в системах потолочного отопления. 6-ходовой, с внутренней резьбой.
.
| Функциональные характеристики | |
|---|---|
| Среда для нормальной работы | Вода (Теплая/Холодная) |
| Температурный режим среды | От +6°С до +50°С |
| Ps (давление номинал), кПа | 1000 |
| ΔPsmax (давление дифферен), кПа | 100 |
| Расходная характер-ка | Линейная |
| Максимальная пропускная способ-ть (Kvs) | 1-й контур – 2,5 куб.м/ч 2-й контур – 0,63 куб.м/ч |
| Герметичность | Полная (класс А) |
| Способ соединения с трубой | С помощью резьбы на кране (внутренней) |
| Поворот крана | Угол 0-30° - I рабочая кривая
Угол 30-60° - зона вне работы Угол 60-90° - II рабочая кривая |
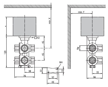
| Позиция установки привода | Возможно 2 установочных позиции по отношению ко штоку- вертикально или горизонтально |
| Технич. поддержка | Отсутствует |
| Материалы | |
| Корпус (штомпов.) и шток | Латунь никелир. |
| Конус | Латунь хромиров. |
|
Уплотнитель Шток Шар (регулир. элемент) |
Резиновое кольцо (NBR) Резиновое кольцо (NBR), PTFE |
| Регулирующая поток диафрагма | Сталь коррозионностойкая |
Принцип управления
Управление и переключение контуров в шаровом кране Belimo R3020-2P5-P63-B2 осуществляется поворотным электроприводом серий LR либо HR (плавное регулирование). Команды на привод поступают посредством двух типов управляющих сигналов – MP либо стандартным сигналом в диапазоне 0-10 В.
Согласно поступившему сигналу, электропривод поворачивая регулирующей элемент крана (шар) в соответствующую позицию. При повороте по часовой стрелке (влево) до упора – открывается охлаждающий контур. При повороте в противоположную сторону – открывается обогревательный контур.
Процесс установки
Во время установки нужно ориентироваться на направленность потока воды. На штоке крана Belimo R3020-2P5-P63-B2 находится L-отметка, которая показывает положение шара.
Вы можете уточнить стоимость и заказать шаровой кран Belimo R3020-2P5-P63-B2, позвонив по телефону 8 (499) 201-22-47.
Предоставление оптовых цен и скидок возможно только после индивидуального обсуждения.
На шаровой кран Belimo R3020-2P5-P63-B2 распространяется гарантия в течение 5 лет. К изделию прилагаются паспорт и сертификат соответствия.

Необходимо принимать во внимание направление потока. Положение шара определяется по L-метке на штоке.

Скачать PDF (194 Кбайт)
Сертификат BELIMO (775 Кбайт)