
Электроприводы Belimo | Приводы Belimo | Сервоприводы Belimo
127106, Россия, г.Москва, Нововладыкинский пр., д.8, стр.4, офис 100.
Тел.: 8 (800) 201-64-80 Еmail: belimo@rusmark.ru
Регулирующий кран шарового типа Belimo R3020-2P5-2P5-B2 предназначен для систем потолочного отопления. Кран регулирует поток рабочей среды и переключает между собой нагревающий и охлаждающий контуры системы. Шестиходовой, с резьбой внутри.
| Данные по функциональности | |
|---|---|
| Рабочая среда | Вода |
| t рабочей среды | Диапазон от +6°С до +50°С |
| Ps - номинальное давление в кране | 1000 кПа |
| ΔPVmax - дифференциальное давление в кране | 100 кПа |
| Расходная характеристика | Линейная |
| Kvs - максимальная пропускная возможность | 2,5 м3/ч в обоих контурах |
| Допустимая протечка | Кран полностью герметичен |
| Присоединение к трубе | С помощью резьбы внутри крана |
| Поворот крана | Угол 0 - 30° - I кривая Угол 30° - 60° - интервал вне работы Угол 60° - 90° - II кривая |
| Установочные позиции по отношению ко штоку | Вертикально/горизонтально |
| Сервисное обслуживание | Нет |
| Материалы деталей крана | |
| Корпус штампованный | Латунь, никелевое покрытие |
| Шток крана | Латунь, никелевое покрытие |
| Конус крана | Латунь, хромирование |
| Элемент уплотнения штока | О-образное кольцо NBR (нитрил-каучук) |
| Элемент уплотнения шара | О-образное кольцо NBR (нитрил-каучук), PTFE |
| Регулирующая поток диафрагма | Антикоррозионная сталь |
Принцип управления и функционирования крана
Регулирование работы шарового крана модели Belimo R3020-2P5-2P5-B2 происходит за счет поворотного электропривода, который на основании сигнала управления от контроллера поворачивает кран внутри шара в заданное положение, открывая один из контуров. Для открытия охлаждающего контура кран необходимо поворачивать по часовой стрелке до упора. Для открытия нагревающего контура - в противоположном направлении соответственно. Для управления электроприводом применяется либо аналоговый сигнал в интервале постоянного тока 0-10 В, либо цифровой MP сигнал.
Подбор электропривода
Для управления краном Belimo R3020-2P5-2P5-B2 подходят поворотные электроприводы HR и LR серий с плавным регулированием. Для выбора конкретной модели привода необходимо ориентироваться на соответствии технических характеристик крана привода.
Принцип монтажа кран
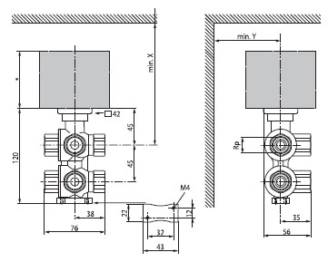
В процессе монтажа шарового крана Belimo R3020-2P5-2P5-B2 важно ориентироваться на направление потока рабочей среды. Чтобы определить позицию шара в конкретный момент времени на штоке предусмотрена L-отметка.
Вы можете узнать стоимость изделия и заказать шаровой кран Belimo R3020-2P5-2P5-B2, позвонив по телефону 8 (499) 201-22-47.
Предоставление скидок на изделие Belimo R3020-2P5-2P5-B2, а также оптовые цены обсуждаются индивидуально.
Гарантийный срок на шаровой кран Belimo R3020-2P5-2P5-B2 - 5 лет с момента приобретения. Технический паспорт изделия и сертификат соответствия прилагаются.

Необходимо принимать во внимание направление потока. Положение шара определяется по L-метке на штоке.

Скачать PDF (194 Кбайт)
Сертификат BELIMO (775 Кбайт)