
Электроприводы Belimo | Приводы Belimo | Сервоприводы Belimo
127106, Россия, г.Москва, Нововладыкинский пр., д.8, стр.4, офис 100.
Тел.: 8 (800) 201-64-80 Еmail: belimo@rusmark.ru
Регулирующий кран шарового типа Belimo R3020-1-1P6-B2 предназначен для использования в системах потолочного отопления. Кран переключает между собой охлаждающий и нагревающий контуры и регулирует поток рабочей среды. Шестиходовой, присоединение к трубе с помощью резьбы внутри крана.
| Рабочая среда | Вода холодная/горячая |
| Температурный режим рабочей среды | От +6°С до +25°С (холодная вода) / От +25°С до +50°С (горячая вода) |
| Ps - давление крана номинальное, кПа | Ps = 1000 |
| ΔPVмакс - давление крана дифференциальное, кПа | ΔPVмакс = 100 |
| Расходная характеристика крана | Линейная |
| Kvs Max (макс. пропускная способность) |
1 м3 в час - 1-й контур 1,6 м3 в час - 2-й контур |
| Допустимая протечка | Кран полностью герметичен |
| Присоединение к трубе | С помощью резьбы внутри крана |
| Допустимый поворот крана | Угол от 0° до 30° - 1-ая кривая Угол от 30° до 60° - интервал вне работы Угол от 60° до 90° - 2-ая кривая |
| Варианты установочных позиций относительно штока | Горизонтально либо вертикально |
| Поддержка технич. службы | Не предусмотрена |
| Корпус крана штампованный | Латунный, покрытие никелем |
| Конус крана | Латунный, с хромированием |
| Шток крана | Латунный, покрытие никелем |
| Материал уплотнения штока | Кольцо NBR (нитрил-каучук) |
| Материал уплотнения шара | Кольцо NBR (нитрил-каучук); PTFE (тефлон) |
| Регулирующая поток диафрагма | Сталь с нержавеющим покрытием |
Управление краном и принцип работы
Для регулирования работы шарового крана модели Belimo R3020-1-1P6-B2 используется поворотные электроприводы. В соответствии с управляющим сигналом, который посылает контроллер, электропривод вращает шар внутри крана в положение, необходимое для открытия одного из двух контуров системы. Если необходимо открыть обогревающий контур, то кран нужно поворачивать влево, в направлении против часовой стрелки. Если необходимо открыть охлаждающий контур, то кран поворачивается в противоположную сторону соответственно. Контроллер посылает команды на электропривод либо с помощью стандартного аналогового сигнала в интервале постоянного тока от 0 до 10 В, либо с помощью цифрового сигнала MP.
Подбор подходящих электроприводов
При подборе электроприводов для управления краном Belimo R3020-1-1P6-B2 необходимо учитывать технические параметры крана. Могут применяться электроприводы серий HR... либо LR... с плавным регулированием.
Процесс установки крана
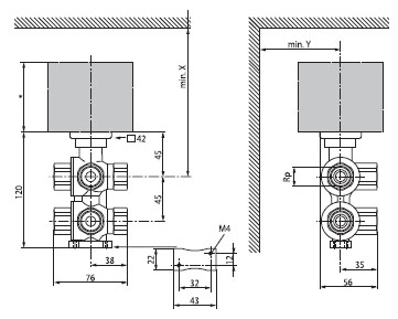
При установке шарового регулирующего крана Belimo R3020-1-1P6-B2 важно учитывать направление потока рабочей среды. Для определения положения шара в данный момент на штоке крана Belimo R3020-1-1P6-B2 размещена специальная отметка L.
Вы можете уточнить всю интересующую информацию и стоимость шарового крана Belimo R3020-1-1P6-B2, а также оформить заказ на изделие, позвонив по телефону 8 (499) 201-22-47.
Обсуждение скидок и оптовых цен на большие партии изделия происходит в индивидуальном порядке.
Гарантийный срок на шаровой кран Belimo R3020-1-1P6-B2 действует в течение пяти лет с момента приобретения. К изделию прилагаются технический паспорт и сертификат соответствия.

Необходимо принимать во внимание направление потока. Положение шара определяется по L-метке на штоке.

Скачать PDF (194 Кбайт)
Сертификат BELIMO (775 Кбайт)