
Электроприводы Belimo | Приводы Belimo | Сервоприводы Belimo
127106, Россия, г.Москва, Нововладыкинский пр., д.8, стр.4, офис 100.
Тел.: 8 (800) 201-64-80 Еmail: belimo@rusmark.ru
Шаровой кран Belimo R3015-P63-1P3-B2 используется в системах потолочного отопления. Кран регулирует работу охлаждающего и нагревающего контуров, переключая их между собой.
|
Нормальная среда для работы |
Вода: Холодная – t от +6°С до +25°С Горячая – t от +25°С до +50°С |
|
Ps (номинал давление), кПа |
Ps = 1000 |
|
ΔPVmax (дифферен давление), кПа |
ΔPVmax = 100 |
|
Характеристика расхода воды |
Линейный расход |
|
Пропускная возможность (Kvs) максимальная |
0,63 м3/ч (I контур), 1,3 м3/ч (II контур) |
|
Герметичность |
Полная (класс А) |
|
Способ соединения с трубой |
При помощи резьбы, внутренней |
|
Допустимый угол вращения |
Угол от 0 до 30 ° - кривая №1 Угол от 30 до 60 ° - зона вне работы Угол от 60 до 90 ° - кривая №2 |
|
Установочное положение |
Установка привода производится вертикально либо горизонтально относительно штока |
|
Технич. поддержка |
Не предусмотрено |
|
Корпус (штамповка) / шток |
Латунь никелир. |
|
Конус |
Латунь хромир. |
|
Материал уплотнения |
Каучуковое кольцо (NBR) – шток Каучуковое кольцо (NBR), PTFE - шар |
|
Регулирующая поток диафрагма |
Сталь-нержавейка |
Принцип управления
Регулирование работы шарового крана Belimo R3015-P63-1P3-B2 осуществляется электроприводом поворотного типа*. Привод поворачивает регулирующий элемент крана (шар) в позицию, которую задает контроллер посредством аналогового сигнала в диапазоне 0 – 10 В или сигнала MP. Чтобы открыть охлаждающий контур, необходимо повернуть кран вправо (по часовой стрелке). Для открытия нагревающего контура – кран поворачивается в противоположную сторону.
* Применяются электроприводы двух серий – HR или LR с плавным регулированием.
Процесс монтажа
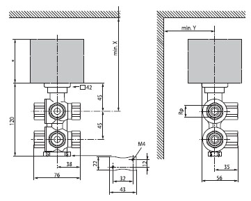
В процессе установки необходимо ориентироваться на направление водного потока. Для определения текущего положения шара на кране Belimo R3015-P63-1P3-B2 предусмотрена специальная L отметка.
Для уточнения информации и стоимости шарового крана Belimo R3015-P63-1P3-B2 Вы можете звонить по телефону 8 (499) 201-22-47.
Предоставление скидок и специальных цен на оптовые партии заказа обсуждаются индивидуально.
На шаровой кран Belimo R3015-P63-1P3-B2 действует гарантия в течение 5 лет со дня покупки. К изделию также прилагаются технический паспорт и сертификат соответствия.

Необходимо принимать во внимание направление потока. Положение шара определяется по L-метке на штоке.

Скачать PDF (194 Кбайт)
Сертификат BELIMO (775 Кбайт)