
Электроприводы Belimo | Приводы Belimo | Сервоприводы Belimo
127106, Россия, г.Москва, Нововладыкинский пр., д.8, стр.4, офис 100.
Тел.: 8 (800) 201-64-80 Еmail: belimo@rusmark.ru
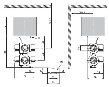
6-ходовый регулирующий шаровой кран.
2-ходовый регулирующий шаровой кран R3015-P63-1-B2 внутренняя резьба.
| Среда | Холодная и горячая вода |
| Температура среды | Холодная вода +6 °С … +25 °С |
| Горячая вода | +25 °С … +50 °С |
| Номинальное давление | Ps 1000 кПа |
| Характеристика потока | Линейная |
| Пропускная способность Kvs | См. таблицу вверху |
| Дифференциальное давление ΔPVmax | 100 кПа |
| Уровень утечки | Герметичен |
| Трубное присоединение | Внутренняя резьба |
| Угол поворота | Кривая 1: 0…30 ° Нерабочая зона 30…60 ° Кривая 2: 60…90 ° |
| Положение установки | От вертикального до горизонтального (относительно штока) |
| Тех. обслуживание | Не требуется |
| Тело клапана | Штампованное, никелированная латунь |
| Конус клапана | Хромированная латунь |
| Шток | Никелированная латунь |
| Уплотнение штока | Кольцо / NBR |
| Уплотнение шара | PTFE, Кольцо NBR |
| Диафрагма регулировки потока | Нержавеющая сталь |
Управление
Регулирующий клапан Belimo R3015-P63-1-B2 управляется при помощи поворотного электропривода. Поворотные электроприводы управляются сигналом 0…10 В= или MP сигналом, устанавливая шар регулирующий шаровой кран Belimo R3015-P63-1-B2 в требуемое положение. При повороте крана до упора по часовой стрелке — полностью открыт контур охлаждения. При повороте кран Belimo R3015-P63-1-B2 до упора против часовой стрелки — полностью открыт контур обогрева.
Электропривод
Подбор электропривода производится в зависимости от типа и размера шаровой кран Belimo R3015-P63-1-B2. Применяются приводы серий LR… или HR… с плавной регулировкой.
Установка
Необходимо принимать во внимание направление потока. Положение шара определяется по L-метке на штоке муфта Belimo R3015-P63-1-B2.
Регулирующий клапан Белимо R3015-P63-1-B2 а также запросить его цену и стоимость вы можете позвонив по телефону: 8 (499) 201-22-47.
Скидки и оптовые цены на регулирующий шаровой кран Белимо R3015-P63-1-B2 мы обсуждаем индивидуально.
На Кран Белимо R3015-P63-1-B2 распространяется 5 лет гарантии с момента продажи, а также сертификат соответствия и паспорт изделия.

Необходимо принимать во внимание направление потока. Положение шара определяется по L-метке на штоке.

Скачать PDF (194 Кбайт)
Сертификат BELIMO (775 Кбайт)