
Электроприводы Belimo | Приводы Belimo | Сервоприводы Belimo
127106, Россия, г.Москва, Нововладыкинский пр., д.8, стр.4, офис 100.
Тел.: 8 (800) 201-64-80 Еmail: belimo@rusmark.ru
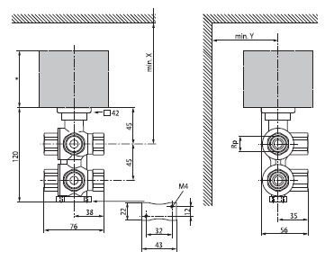
Регулирующий кран шарового типа Belimo R3015-1-P63-B2 применяется для управления и переключения между собой нагревающего и охлаждающего контуров в системах потолочного отопления помещений. Шестиходовой, присоединение с помощью резьбы внутри крана.
| Рабочая среда (теплоноситель) | Холодная вода: t от +6°С до +25°С Горячая вода: t от +25°С до +50°С |
| Ps (номин. давление) | 1000 кПa |
| ΔPVмакс | 100 кПа |
| Расходная характеристика потока | Линейная |
| Kvs max | 1 куб.м/час (1-й контур)
0,63 куб.м/час (2-й контур) |
| Герметичность крана | 100% герметичен |
| Способ присоединения к трубе | С помощью резьбы внутри крана |
| Вращение крана | От 0° до 30° - I кривая
От 30° до 60° - зона вне работы От 60° до 90° - II кривая |
| Варианты установки | 2 установочных позиции – горизонтально и вертикально по отношению ко штоку |
| Сервисное обслуживание | Нет |
| Корпус (штамповка) / шток | Латунь с никелевым покрытием |
| Конус крана | Латунь с хромированием |
| Материал уплотнения | О-Образное кольцо из NBR (нитрильный каучук) – шток О-Образное кольцо из NBR (нитрильный каучук), Тефлон - шар |
| Диафрагма управления потоком | Сталь антикоррозионная |
Принцип управления
Для управления шаровым краном Belimo R3015-1-P63-B2 используется электропривод поворотного типа. Привод перемещает шар крана в нужную позицию в соответствии с посылаемым от контроллера управляющим сигналом. Применяются 2 типа сигналов: либо стандартный в интервале от 0 до 10 В, либо MP сигнал. Для открытия охлаждающего контура необходимо повернуть шар вправо, по часовой стрелке, для открытия нагревающего контура – в противоположную сторону.
Для управления краном Belimo R3015-1-P63-B2 применяются электроприводы из линеек HR и LR.
Процесс установки
Чтобы корректно установить кран Belimo R3015-1-P63-B2 нужно ориентироваться на направления потока воды. Для выбора необходимой позиции шара на штоке предусмотрена специальная отметка L.
Для уточнения стоимости изделия и заказа крана Belimo R3015-1-P63-B2 звоните о телефону 8 (499) 201-22-47.
Скидки и оптовые цены обсуждаются персонально.
Гарантия на шаровой кран Belimo R3015-1-P63-B2 – 5 лет со дня покупки. Паспорт и сертификат соответствия прилагаются.

Необходимо принимать во внимание направление потока. Положение шара определяется по L-метке на штоке.

Скачать PDF (194 Кбайт)
Сертификат BELIMO (775 Кбайт)