
Электроприводы Belimo | Приводы Belimo | Сервоприводы Belimo
127106, Россия, г.Москва, Нововладыкинский пр., д.8, стр.4, офис 100.
Тел.: 8 (800) 201-64-80 Еmail: belimo@rusmark.ru
Кран шаровой Belimo R3015-1-P4-B2 c внутренней резьбой. Предназначен для управления потоком воды в системах потолочного отопления. Осуществляет переключение нагревающего и охлаждающего контуров между собой. Шестиходовой.
| Среда для работы | Вода холодная и горячая |
| Температурный диапазон среды | +6°С … +50°С |
| Ps (номинал. давление) | 1000 кПа |
| ΔPVмакс (дифферен. давление) | 100 кПа |
| Расход рабочей среды | Линейный |
| Kvs |
1-й контур - макс. 1 м3 в час 2-й контур - макс. 0,4 м3 в час |
| Герметичность | 100% герметичен |
| Соединение с трубой | Резьба внутренняя |
| Угол вращения крана | 1-ая кривая - 0° ... 30° Нерабочий интервал - 30° ... 60 ° 2-ая кривая - 60° ... 90 ° |
| Установочные позиции | Горизонтально/вертикально по отношению ко штоку |
| Сервисная поддержка | Нет |
| Корпус (штамповка) / шток | Латунь никелиров. |
| Конус | Латунь с хромированием |
| Уплотнительный элемент штока | Каучуковое кольцо (NBR) |
| Уплотнительный элемент шара | PTFE, Каучуковое кольцо (NBR) |
| Регулирующая диафрагма | Коррозионно-стойкая сталь |
Функционирование и управление
Шаровой кран Belimo R3015-1-P4-B2 регулируется посредством электропривода поворотного типа серий LR либо HR с плавным управлением. В соответствии с управляющим сигналом электропривод перемещает шар внутри крана в необходимую позицию для открытия одного из контуров. Используются 2 вида управляющих сигналов - аналоговый стандартный в интервале 0 - 10 В DC и цифровой сигнал. Если кран поворачивается влево, в направлении против часовой стрелки, то открывается нагревающий контур. При повороте крана в противоположную сторону открывается охлаждающий контур.
Монтирование крана
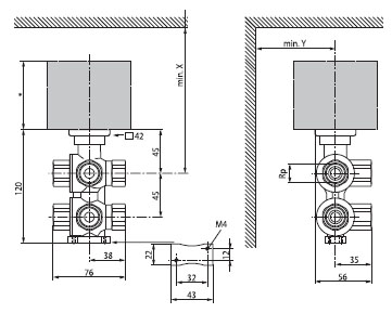
В процессе монтирования шарового крана Belimo R3015-1-P4-B2 важно учитывать направление потока воды. На штоке крана Belimo R3015-1-P4-B2 размещена специальная L-отметка, которая показывает текущее положение шара.
Чтобы узнать подробную информацию и заказать шаровой регулирующий кран Belimo R3015-1-P4-B2 звоните по телефону 8 (499) 201-22-47.
Скидки и оптовые цены на кран Belimo R3015-1-P4-B2 обсуждаются в индивидуальном порядке.
На шаровой кран Belimo R3015-1-P4-B2 действует гарантия в течение 5 лет со дня покупки. Технический паспорт и сертификат соответствия прилагаются.

Необходимо принимать во внимание направление потока. Положение шара определяется по L-метке на штоке.

Скачать PDF (194 Кбайт)
Сертификат BELIMO (775 Кбайт)