
Электроприводы Belimo | Приводы Belimo | Сервоприводы Belimo
127106, Россия, г.Москва, Нововладыкинский пр., д.8, стр.4, офис 100.
Тел.: 8 (800) 201-64-80 Еmail: belimo@rusmark.ru
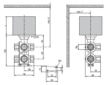
Шаровой 6-ти ходовой кран Belimo R3015-1-P25-B2 предназначен для систем потолочного охлаждения и обогрева. Управление краном осуществляется электрическим приводом серий HR или LR.
| Функциональные характеристики: | |
| Рабочая среда |
Вода: Холодная, t: +6 С … +25 °С Горячая, t: +25 С … +50 °С |
| Pномин | 1000 kPa |
| Pдифферен | 100 kPa |
| Расходная характеристика | Линейная |
| Максимально возможная пропускная возможность |
1 м3/ч – контур №1 0,25 м3/ч – контур №2 |
| Класс герметичности | Класс А – полностью герметичен |
| Соединение | Соединение с трубой с помощью внутренней резьбы |
| Поворот |
90° - Угол 0-30° (для кривой 1) - Угол 30-60° (вне работы) - Угол 60…90° (для кривой 2) |
| Установочное положение привода | Рассматривается по отношению ко штоку: установка либо вертикальная, либо горизонтальная |
| Поддержка | Техническая поддержка не требуется |
| Материалы: | |
| - Тело/шток | Никелиров. латунь |
| - Конус | Хромиров. латунь |
| - Уплотнитель |
Резина NBR (кольцо) – шток Резина NBR (кольцо) / ПТФЭ - шар |
| - Диафрагма для регулировки потока воды | Коррозионностойкая сталь |
Принцип управления и установка
За управление клапаном регулировки и переключения контуров Belimo R3015-1-P25-B2 отвечает поворотный электропривод. Открытие одного из контуров происходит при помощи шара, выполняющего управляющую функцию. Приведение шара в требуемое положение осуществляет электропривод посредством сигналов от контроллера – стандарта 0…10В или МР. Если кран повернут в направлении по часовой стрелке – до конца открывается охлаждающий контур. Если кран повернут против часовой стрелки – открывается обогревающий контур.
Исходя из размера и типа шарового крана Belimo R3015-1-P25-B2 могут использоваться электрические приводы типа HR или LR с плавным регулированием.
В соответствии с направлением потока воды выбирается и установочное положение электропривода. Чтобы определить положение управляющего устройства (шара) крана Belimo R3015-1-P25-B2, необходимо ориентироваться на L-метку на штоке.
Узнать стоимость 6-ти ходового крана Belimo R3015-1-P25-B2 и сделать заказ можно, позвонив по телефону 8 (499) 201-22-47.
Возможно индивидуальное обсуждение скидок и оптовых цен на шаровые краны Belimo R3015-1-P25-B2.
Обязательная гарантия на устройство Belimo R3015-1-P25-B2 – 5 лет со дня приобретения. В комплектацию входят паспорт изделия с техническим описанием и характеристиками, а также сертификат о соответствии.

Необходимо принимать во внимание направление потока. Положение шара определяется по L-метке на штоке.

Скачать PDF (194 Кбайт)
Сертификат BELIMO (775 Кбайт)