
Электроприводы Belimo | Приводы Belimo | Сервоприводы Belimo
127106, Россия, г.Москва, Нововладыкинский пр., д.8, стр.4, офис 100.
Тел.: 8 (800) 201-64-80 Еmail: belimo@rusmark.ru
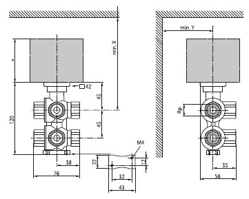
Шаровой кран Belimo R3015-1-1P3-B2 с внутренней резьбой для управления потоком рабочей среды в системах потолочного отопления. С помощью крана происходит переключение между собой контуров обогрева и охлаждения. Шестиходовой.
| Рабочая среда | Вода холодная/горячая |
| Температура рабочей среды | От +6°С до +50°С |
| Ps (номинальное давление крана) | 1000 кПа |
| ΔPVmax (дифференциальное давление крана) | 100 кПа |
| Характеристика потока | Линейная |
| Kvs | 1 куб.м/ч - 1-й контур; 1,3 куб.м/ч - 2-й контур |
| Допустимая утечка | 100% герметичность |
| Соединение с трубой | Резьба внутренняя |
| Допустимый поворот крана | Угол 0…30° - 1-ая кривая Угол 30…60° - вне рабочий интервал Угол 60…90° - 2-ая кривая |
| Установочные позиции по отношению ко штоку | Горизонтальная/вертикальная позиция |
| Сервисная поддержка | Не предусмотрена |
| Корпус (штамповка) / шток крана | Латунь с никелевым покрытием |
| Конус крана | Латунь с хромированием |
| Материал уплотнения штока | О-образное кольцо из нитрил-каучука NBR |
| Материал уплотнения шара | PTFE, О-образное кольцо из нитрил-каучука NBR |
| Регулирующая диафрагма крана | Сталь-нержавейка |
Управление и принцип работы
Для управления шаровым краном Belimo R3015-1-1P3-B2 применяются поворотные электроприводы серий HR либо LR с плавным регулированием. Электропривод на основании управляющего сигнала перемещает шар внутри крана в необходимое положение, чтобы открыть один из контуров. Если кран вращается влево (против часовой стрелки), то открывается обогревающий контур. Если кран вращается в противоположную сторону, то открывается, соответственно, охлаждающий контур. Для управления приводом применяются управляющие сигналы 2-х типов: аналоговый в интервале постоянного тока 0 - 10 В и цифровой сигнал MP.
Принцип установки крана
При установке крана Belimo R3015-1-1P3-B2 важно учитывать направление потока рабочей среды. На штоке крана находится специальная L-отметка, по которой можно определить текущее положение шара.
Вы можете заказать шаровой кран Belimo R3015-1-1P3-B2 и узнать всю интересующую информацию, позвонив по телефону 8 (499) 201-22-47.
Предоставление скидок на изделие Belimo R3015-1-1P3-B2, а также оптовые цены обсуждаются индивидуально.
На шаровой кран Belimo R3015-1-1P3-B2 действует стандартная гарантия в течение 5 лет со дня покупки. Технический паспорт изделия и сертификат соответствия прилагаются.

Необходимо принимать во внимание направление потока. Положение шара определяется по L-метке на штоке.

Скачать PDF (194 Кбайт)
Сертификат BELIMO (775 Кбайт)