
Электроприводы Belimo | Приводы Belimo | Сервоприводы Belimo
127106, Россия, г.Москва, Нововладыкинский пр., д.8, стр.4, офис 100.
Тел.: 8 (800) 201-64-80 Еmail: belimo@rusmark.ru
Привод воздушной заслонки, Ручное управление кнопкой с самовозвратом, IP54.
| Артикул | SHQ24A-SR100 |
| Вспомогательные переключатели | Нет |
| Кабель | 1 м, 4 x 0.75 мм² |
| Крутящий момент | 200 Н |
| Питание | 24 В~/= |
| Площадь заслонки ≈ | 1,3 м² |
| Присоединение | Шток |
| Серия | SHQ |
| Управление | Плавное 0…10 В= Рабочий диапазон 2…10 В= |
| Electrical data | |
|---|---|
| Nominal voltage | AC 24 V, 50/60 Hz / DC 24 V |
| Nominal voltage range | AC 19.2 ... 28.8 V / DC 21.6 ... 28.8 V |
| Power consumption In operation At rest For wire sizing |
13 W @ nominal torque 2 W 23 VA (I max. 20 A @ 5 ms) |
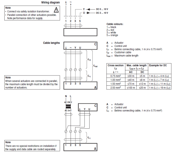
| Connection | Cable 1 m, 4 x 0.75 mm2 |
| Functional data | |
| Actuating force | IMin. 200 N @ nominal voltage |
| Control | I Control signal Y |
| Operating range | I DC 0 ... 10 V, input impedance 100 kΩ DC 2 ... 10 V |
| Position feedback (Measuring voltage) | IDC 2 ... 10 V, max. 0.5 mA |
| Position accuracy | I ±5% |
| Direction of stroke | I Reversible with switch 0 / 1 |
| Direction of stroke at Y = 0 V | IAt switch position 1 resp. 0 |
| Manual override | IGearing latch disengaged with pushbutton, can be locked |
| Stroke adjustment | I 20 ... 100 mm, adjustable in 20 mm-steps, can be limited at both ends with mechanical end stops |
| Stroke limiting | I Min. 40 mm |
| Running time | I 7 s / 100 mm |
| Automatic adjustment of operating range and measuring signal U to match the mechanical stroke adjustment | I Manual triggering of the adaption by pressing the «Adaption» button |
| Override control I | MAX (maximum position)= 100% MIN (minimum position)= 0% ZS (intermediate position, only AC)= 50% |
| Sound power level | 52 dB (A) |
| Negative torque! | ≤50% from nominal torque (Caution: can only be used with restrictions. Please contact your Belimo representative.) |
| Safety | |
| Protection class | III Safety extra-low voltage UL Class 2 Supply |
| Degree of protection | IP54 in any mounting position NEMA 2, UL Enclosure Type 2 |
| EMC | CE according to 2004/108/EC |
| Certification | Certified to IEC/EN 60730-1 and IEC/EN 60730-2-14 cULus according to UL 60730-1A and UL 60730-2-14 and CAN/CSA E60730-1:02 |
| Mode of operation | Type 1 |
| Rated impulse voltage | 0.8 kV |
| Control pollution degree | 3 |
| Ambient temperature ! | –30 ... +40°C (no restrictions) +40 ... +50°C (Caution: can only be used with restrictions. Please contact your Belimo representative.) |
| Non-operating temperature | –40 ... +80°C |
| Ambient humidity | 95% r.H., non-condensating |
| Maintenance | Maintenance-free |
| Dimensions / Weight | |
| Dimensions | See «Dimensions» on page 6 |
| Weight | Approx. 1.25 kg |

Скачать PDF (1,25 Мбайт)
Сертификат BELIMO (775 Кбайт)