
Электроприводы Belimo | Приводы Belimo | Сервоприводы Belimo
127106, Россия, г.Москва, Нововладыкинский пр., д.8, стр.4, офис 100.
Тел.: 8 (800) 201-64-80 Еmail: belimo@rusmark.ru
| Артикул товара | SMQ24A-MF |
| Доп. переключатели | Не предусмотрено |
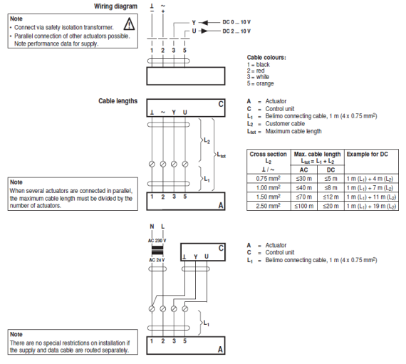
| Кабельное подключение | 100 см, 4*0,75 mm² |
| Момент вращения | 16 Nm |
| Электропитание | 24 V~/= |
| Поверхность заслонки макс | 3,2 m² |
| Монтаж | Захват |
| Серия | SMQ |
| Регулирование работы | Плавное 0-10 V= диапазон работы 2-10 V= Возможна настройка |
| Характеристики | |
|---|---|
| U номин | AC 24 V, 50/60 Гц / DC 24 В |
| Диапазон номин. U | AC от 19,2 до 28,8 В / DC от 21,6 до 28,8 В |
| Потребление мощности Работа Нерабочее состояние Для калибровки |
15 Вт @ nominal torque 2 Вт 26 VA (1 макс. 20 A @ 5 см) |
| Подключение | Кабельное, 100 см, 4*0,75 мм2 |
| Функционал | |
| Момент вращения | Мин. 16 Нм |
| Контроль сигнала | DC 0-10 В, DC 0 -10 в, входное сопротивление 100 kΩ |
| Диапазон работы | DC 2-10 В |
| Обратная связь | DC 2-10 В, макс. 0,5 мA |
| Точность | ±5% |
| Направление | Реверс, 0 или 1 |
| Направление Y = 0 V | в положении переключателя 0 отв. 1 |
| Управление вручную | Возможна блокировка |
| Поворот | Макс. 95°, возможно ограничение упорами |
| Поворот | Мин. 30° |
| Продолжительность поворота | 7 секунд на 90° |
| Автоматическая регулировка рабочего диапазона и измерительного сигнала U в соответствии с механическим углом поворота | ручной запуск адаптации нажатием кнопки "адаптация" или с помощью ПК-инструмента |
| Управление | Макс= 100% Мин = 0% ZS = 50% |
| Шум | 52 dB (A) |
| Индикатор | Указатель |
| Отрицательный крутящий момент | ≤50% от номинального вращающего момента (Предосторежение: смогите только быть использовано с ограничениями. Пожалуйста, свяжитесь с представителем Belimo.) |
| Защита | |
| Защита | 3 класс, безопасность сверхнизкое напряжение |
| Степень безопасности | IP54 |
| EMC | согласно 2004/108/EC |
| Сертифицирован | сертификация в соответствии с IEC/En 60730-1 и МЭК/En 60730-2-14 камней по 60730-1А Ул и ул 60730-2-14 и может/CSA для E60730-1:02 |
| Режим работы | Тип 1 |
| Номин. импульс. U | 0.8 kV |
| Контроль загрязнения | 3 |
| Температура окружающей среды | от –30 до +40°C (без ограничений) от+40 до +50°C |
| Т хранения | от –40 до +80°C |
| Влажность окружающей среды | 95% r.H., не конденсируется |
| Обслуживание | Бесплатное |
| Размер | |
| Размеры | см. на след. стр. |
| Масса | 970 гр |
Заказать БЕЛИМО SMQ24A-MF, узнать цену можно по номеру: 8 (499) 201-22-47
SMQ24A-MF belimo цена при оптовом заказе обсуждается индивидуально с каждым клиентов с учетом скидки.
Гарантия на привод BELIMO SMQ24A-MF составляет пять лет со дня реализации. в комплект входит паспорт товара и сертификат соответствия.
Скачать PDF (1,3 Мбайт)
Сертификат BELIMO (775 Кбайт)